產品分類一覽
淀粉氣力輸送及自動配料系統
淀粉氣力輸送及自動配料系統
- 所屬類目:食品
- 產品亮點:

淀粉氣力輸送系統概述
在玉米淀粉生產過程中,淀粉干燥后需要輸送到包裝車間去。這個輸送系統是十分重要的,它關系到淀粉包裝溫度、粉塵飛揚、淀粉回收率和安全生產等重大事項。正確設計和配置玉米淀粉輸送系統可以降低淀粉溫度、保障安全生產的順利實施。玉米淀粉輸送系統是指從淀粉氣流干燥旋風分離器下的淀粉料斗到淀粉包裝車間的淀粉料倉之間的部分。本文講述使用羅茨風機正壓吹送、離心風機負壓吸送和正壓吹送三種方式對淀粉進行輸送的氣力輸送系統。
玉米淀粉氣力輸送原理和分類
2.1 玉米淀粉氣力輸送原理玉米淀粉輸送采用氣力輸送技術。氣力輸送,又稱氣流輸送,是利用氣流能量在密閉管道內沿氣流方向輸送顆粒狀物料,是流態化技術的一種具體應用。在輸送過程中,該技術還允許對物料進行加熱、冷卻、干燥和氣流分級等物理操作。流過的單位重量氣體得到能量的大小是氣體輸送機械的重要性能,用風壓來表示氣體輸送機械賦予單位體積氣體的機械能。由于氣體密度小,有可壓縮性。
氣力輸送的特點是結構簡單、操作方便,可以水平、垂直或斜向輸送,占用地面和空間少,輸送線路靈活,防塵效果好,不污染環境和物料。在輸送物料的同時還能完成干燥、加熱、冷卻和混合等過程,能量消耗大。輸送管道兩端的氣體壓力差使管道中的氣體流動,當氣流的速度達到一定值時,管道中的物料在氣流動力作用下被送走。管道中物料的流動狀態隨氣流速度、物料特性和氣流中所含物料量的不同而變化。氣流速度越大,物料在管道中就越接近于均勻分布的懸浮狀態。氣流速度漸次減小時,在水平管道中的物料逐漸沉降,靠近管底處的物料量增加,一部分物料甚至堆積在管底邊滑動邊前行。當氣流速度小于一定值而物料又較多時,在水平管道中的物料堆積層將局部增厚,直至堵塞不動,而在垂直管道中的物料則沉降下來。
在水平管道內,氣流動力方向與物料顆粒重力方向垂直,而共懸浮和運動狀態更為復雜。在選擇氣流速度時,通常以垂直管道內的懸浮速度為依據。在實際氣力輸送管道中,由于物料相互之間以及和管壁的摩擦、碰撞,加之管道內氣流的不均勻等多種原因,實際所需的氣流速度遠比物料的懸浮速度大。
2.2 玉米淀粉氣力輸送分類
⑴ 根據物料在輸送管道中的密集程度,將氣力輸送分為密相輸送和稀相輸送兩種。
① 密相輸送:固體含量高于400kg/m3或固氣比(R)為1:210~260的輸送過程,操作氣速為30~35m/s,用較高的氣壓壓送。密相輸送采用較大的氣流速度和較高的固氣比,輸送能力大,輸送距離長,物料破損和設備磨損較重,能耗較大。
② 稀相輸送:固體含量低于100kg/m3或固氣比(R)為1:900~1000的輸送過程,操作氣速為30~35m/s,用較低的氣壓壓送或吸送。稀相輸送采用較大的氣流速度和較低的固氣比,輸送能力小,輸送距離為數百米,物料在管道中呈懸浮狀態,物料破損和設備磨損較輕,能耗較小。稀相輸送按管道內氣流狀態分為負壓(吸送)輸送、正壓(壓送)輸送和混合輸送三種形式。
⑵ 根據所用設備和輸送物料的方法,可將氣力輸送分為羅茨風機正壓吹送、離心風機負壓吸送、離心風機正壓吹送三種。
① 羅茨風機正壓吹送:正壓吹送技術管道內壓力高于大氣壓,加料器將粉粒送入有壓力的管道中,卸料方便,輸送距離較長。正壓吹送技術一般由羅茨風機提供動力,輸送量大、距離長、操作穩定等優點。該輸送裝置是利用裝在輸送系統起點的風機或空氣壓縮機將正壓空氣通入供料器處與物料混合,形成雙相流經輸料管送到分離器或儲倉內。物料分離卸出,空氣經過濾后逸入大氣。這種系統適合于從一處進料向數處卸料。
正壓吹送技術輸送裝置采用的供料器有:噴嘴式供料器、葉輪式供料器、螺旋式供料器、容積式供料器。噴嘴式供料器是壓縮空氣經噴嘴產生高速氣流,將物料吸入供料器,并隨氣流進入輸料管。這種供料器的空氣消耗量大,輸送能力與輸送距離均有限。葉輪式供料器的下部為輸料管,或在輸料管中裝有噴嘴。通常用在輸料管內和供料處的壓力差小于0.06MPa的系統中,輸送磨琢性小的粉粒料。螺旋式供料器,又稱螺旋泵,是利用螺距逐漸減小的螺旋葉片將物料壓實,有時可在螺旋槽的出口處裝一個重錘活門,下部是裝有噴嘴的混合室,靠噴嘴噴出的氣流將物料送入混合室。通常采用的空氣壓力為0.3MPa。它的能量消耗較大,工作部件容易磨損,僅適合輸送粉料。容積式供料器,也叫充氣罐或倉室泵,是將壓縮空氣通入裝有物料的罐內,空氣與物料混合后由罐的底部或頂部進入輸料管進行輸送。通常采用的空氣壓力高達0.7MPa。單罐僅能間歇式工作,連續輸送需要將兩罐并聯或串聯使用。有時還可在不同區段對輸料管給予補氣,輸送距離可達2km。
② 離心風機負壓吸送:負壓吸送技術管道內壓力低于大氣壓,自吸進料,負壓卸料,輸送距離較短。負壓吸送技術輸送可從低處(或散裝處)、多點向高處一點輸送,一般由通風機提供動力。負壓吸送式氣力輸送裝置利用裝在輸送系統末端的風機或真空泵抽吸空氣,在輸料管中形成負壓氣流。物料從吸嘴被吸入輸料管,與空氣形成雙相流送至分離器內,物料借重力或離心力從氣流中分離卸出。空氣過濾后經風機逸入大氣。這種系統供料方式簡單,適合于由一處或數處進料向另一處集中卸料的短距離輸送。吸嘴有移動式和固定式兩種。移動式吸嘴通過軟管與輸料管相聯,固定式吸嘴需要安裝給料機以均勻給料。
負壓吸送輸送系統用以輸送的氣體壓力低于大氣壓力,故稱負壓吸送式輸送。這種方式可靠、成熟。特點:環保可靠性最好,管路內粉塵不會泄漏于環境。設備制造、維護要求低,可操作性強。使用的壓力(真空度)小,安全性高。氣體取自大氣,氣體的溫度即為環境氣溫。輸送為連續式、亦可間斷,管道內無積存。容易實現多點進料、多點卸料的輸送目標。氣體動力源一般為離心風機,使用壽命長,適宜一般不超過100m的短距離輸送,適合工藝過程中的物料輸送。對物料適應性強,粉料、顆粒料均可順利輸送。
負壓吸送輸送一般用為離心風機作動力源,將管路及中間的倉式容器抽成一定的真空狀態,促成進風口,在大氣壓作用下形成物料粉粒料與氣體的兩相流,經輸送管道輸入旋風分離器。兩相流在旋風分離器內由于離心力及重力的作用下,使大部分物料與氣體分離。少量物料與氣體進入除塵器,通過濾袋作用使粉料與氣體分離。氣體排入大氣。負壓吸送輸送淀粉、蛋白粉、纖維等,可降低物料溫度4~7℃。
③ 離心風機正壓吹送:這種正壓吹送技術管道內壓力高于大氣壓(低于使用羅茨風機正壓吹送的壓力),卸料方便,用離心風機將粉粒送入有壓力的管道中,其它設備和部件與使用離心風機負壓吸送的方法基本相同。
④ 混合氣力輸送:除以上正壓和負壓氣力輸送方法外,還有一種混合氣力輸送,這種輸送裝置由吸送式和壓送式組合而成,共用的風機置于其間。它具有兩者的特點,可在數處進料和數處卸料。
2.3 玉米淀粉氣力輸送系統計算
⑴ 氣流速度:輸送顆粒物料所需氣流速度要大于其懸浮速度的幾倍;輸送粉狀物料則要大幾十倍。速度過小則可能產生堵塞;如果速度過大,不但所需的功率增加,而且輸料管、彎頭的磨損也加劇,分離器和除塵器的尺寸也要增大,所以,應選擇適當的氣流速度。輸送量、輸送風速和輸送濃度是風運網路計算的主要參數。輸料管正常工作,最大物料輸送量(Q)為:
Q = a•q(t/h) ①
式中:a-系數;q-設計輸送量,t/h。
⑵ 沉降速度與懸浮速度:散粒物料在氣流中運動時,沉降速度和懸浮速度是它的最基本性質。球形物體從靜止狀態在空氣中自由下落時受到重力的作用,下落速度越來越快,同時,物體受空氣的阻力也逐漸增大。物體的自重(G)與物體在空氣中受到的浮力(F)和阻力(H)平衡關系如下:
G = f + H(kg) ②
式中:f-浮力,kg;H-阻力,kg。
玉米懸浮速度(υt)為9.8~13.5m/s,需要的輸送氣流速度(υa)是懸浮速度(υt)的2.22~2.55倍,那么,玉米的輸送氣流速度(υa)為25~30m/s。
⑶ 輸送氣流速度:輸送顆粒物料所需氣流速度(υa)要大于其懸浮速度(υt)的幾倍;輸送粉狀物料則要大幾十倍。速度過小則可能產生堵塞,如果速度過大,不但所需的功率增加,而且輸料管、彎頭的磨損也加劇,旋風卸料器尺寸也要增大,所以,應選擇適當氣流速度。
各種物料氣流速度、系數和懸浮速度經驗數據見表1。
表1 各種物料氣流速度、系數和懸浮速度經驗數據
| 輸送物料情況 | 氣流速度[υa(m/s)] | 懸浮速度[υt(m/s)] |
| 松散物料在垂直管中 | υa=(1.3~1.7)υt | |
| 松散物料在傾斜管中 | υa=(1.5~1.9)υt | |
| 松散物料在水平管中 | υa=(1.8~2.0)υt | |
| 有一個彎頭的上升管 | υa=2.2υt | |
| 有兩個彎頭的垂直或傾斜管 | υa=(2.4~10)υt | |
| 管路布置較復雜時 | υa=(2.6~5.0)υt | |
| 相對密度大、成團的粘結性物料 | υa=(5.0~10.0)υt | |
| 細粉狀物料 | υa=(50~100)υt | |
| 玉米 | υa=25~30 | 9.8~13.5 |
| 胚芽 | υa=25~30 | 9.9~13.8 |
| 纖維 | υa=30~35 | 10.0~15.2 |
| 蛋白粉 | υa=30~35 | 10.3~15.4 |
| 玉米淀粉 | υa=30~35 | 10.8~15.8 |
R = G物/G氣 ③
式中:G物-輸送物料重量,t/h;G氣-通過輸料管空氣體積,m3/h。
常見物料氣力輸送時,固氣比(R)見表2。
表2 常見物料氣力輸送時固氣比(R)
| 物料種類 | 固氣比(R) |
| 細粒狀物料(高壓密相輸送式) | 1:210~260 |
| 細粒狀物料(低壓稀相輸送式) | 1:900~1000 |
| 顆粒狀物料(高壓密相輸送式) | 1:300~350 |
| 顆粒狀物料(低壓稀相輸送式式) | 1:1000~1100 |
| 粉狀物料(高壓密相輸送式) | 1:210~260 |
| 纖維狀物料(高壓密相輸送式) | 1:220~270 |
⑸ 輸送量與輸送濃度:輸送一定量的物料所需的空氣與輸送濃度(µ)成反比,輸送濃度(µ)大,所需空氣少,輸送濃度(µ)小,所需空氣多。輸送空氣是要消耗動力的,空氣少了動力消耗就可減少,同時,整個系統管道、卸料器、旋風卸料器及風機等都可縮小,這是輸送濃度大的有利方面。濃度高,輸送壓力損失將增大,操作較困難,并且容易引起堵塞或掉料。考慮到空氣有時還兼有通風和風選的任務,這些都必須保證有相當的風量。
⑹ 輸送風量:濃度大小直接關系到網路的風量和壓力損失的大小,在選定輸送濃度時要考慮到此時的風量和阻力是否與風機的風量和壓力相適應,即風機能否在較高的效率下工作。否則,濃度雖然高,但風機并未在較高效率下工作,動力消耗不一定會降低。根據選定的輸送濃度值計算需要風量(Q)為:
Q = G物/μ•γ(m3/h) ④
式中:G物-輸送量,kg/h;µ-輸送濃度,%;γ-空氣比重,kg/m3。
通常選用空氣量為理論空氣量的1.1~1.2倍。
⑺ 壓送系統壓力損失(H總):可分解為由下列各部分壓損組成:
H總 = H氣 + H供 + H料 + H輔(MPa) ⑤
式中:H氣-鼓風機出口至供料器之間輸送凈空氣管道壓損,MPa;H供-供料器壓損,MPa;H料-從供料器至料倉之間的輸料管道壓損,MPa;H輔-卸料器、選配閥及其它輔助部分壓損,MPa。
⑻ 葉輪式供料器容積(V):可根據所需的物料輸送量(Q)計算公式為:
V = G/γ(m3) ⑥
式中:V-供料器容積,m3;G-物料輸送量,kg/h;γ-物料容重,kg/m3。
葉輪式供料器在工作時有一部分空氣泄漏,量的多少除與供料器規格大小和葉輪與機殼之間間隙有關外,主要取決于供料器出料口處壓力大小,亦即取決于供料器后面全部管路阻力,包括供料器本身阻力以及輸料管、選配閥和卸料器等設備阻力。在一般情況下常用供料器漏風量(Q漏)計算公式為:
Q漏 = 0.02(H供 + H料 + H輔)(m3/min) ⑦
或:Q漏 = 0.02(H總 + H氣)(m3/min) ⑧
⑦和⑧式中:H總-管道總壓損,MPa;H氣-鼓風機出口至供料器之間輸送凈空氣管道壓損,MPa;H料-從供料器至料倉之間的輸料管道壓損,MPa;H輔-卸料器、選配閥及其它輔助部分壓損,MPa。
⑼ 淀粉氣力輸送系統:淀粉顆粒不大,粉狀,比重較小,沉降性不大,輸送性高,采用正壓(壓送)技術,還可以采用負壓(吸送)技術。正壓(壓送)輸送系統使用羅茨風機制造的風輸送淀粉,羅茨風機安裝在氣力輸送管的前端,風直接吹入輸送管中,淀粉使用加料器加入管道中,風將混合的淀粉輸送到旋風分離器后卸料進入淀粉貯罐,旋風分離器出來的可以使用除塵器再一次回收淀粉。負壓(吸送)輸送系統是使用離心風機吸引的風輸送淀粉,氣力輸送管的末端安裝旋風分離器,旋風分離器的末端安裝離心風機。淀粉落入吸風口后既被吸入氣力輸送管道,然后進入旋風分離器,旋風分離器將淀粉分離下來(或經過篩分)進入淀粉貯罐。
玉米淀粉氣力輸送方法和輸送系統設備
3.1 玉米淀粉氣力輸送量玉米淀粉氣力輸送量是決定離心風機風量多少、風機功率大小、玉米淀粉氣力輸送風管直徑大小的主要因素。玉米淀粉輸送量小需要的風量少、風機功率小、輸送風管直徑小,反之,需要的風量多、風機功率大、輸送風管直徑大。一條玉米淀粉生產線的氣流干燥線生產量是確定的,是依據生產規模確定的,本文按氣流干燥線玉米淀粉輸送量(既產量)16.67t/h、一天的玉米淀粉輸送量(既產量)是400t計算。
3.2 玉米淀粉氣力輸送風管風速和淀粉濃度
⑴ 玉米淀粉氣力輸送風管風速是決定能否輸送走物料的主要因素。風速過低不能將玉米淀粉輸送走,或只能輸送很少,淀粉會否積存在玉米淀粉輸送風管內的下部,風速過高也是不可以和浪費的。玉米淀粉輸送風管的淀粉輸送風速是一個恒定值、一個范圍值,取玉米淀粉輸送管風速30~35m/s,平均值35m/s。
⑵ 淀粉濃度與固氣比(R)有關,取玉米淀粉輸送管固氣比(R)1:210~260。那么,使用羅茨風機正壓吹送、離心風機負壓吸送和正壓吹送淀粉在風量中濃度分別為0.43%、0.1%、0.1%。
3.3 玉米淀粉氣力輸送風管直徑
玉米淀粉氣力輸送風管直徑是決定風量大小和輸送量大小、引風機功率的主要因素。風管直徑小,其輸送量、風量、需要的風機功率就小,吸風管直徑大,其輸送量、風量、需要的風機功率就大,風管直徑大小是由輸送量、風速決定的。
根據輸送量、輸送風管風速和不同輸送方法的淀粉濃度既可計算出輸送風管直徑。
3.4 引風機全壓和風量
玉米淀粉氣力輸送系統的風阻情況都較大,即有阻風的部件和設備,也有輸送距離較遠,所以,引風機全壓較大,通常取6200~8500Pa為宜(要分具體情況確定)。風機風量是決定輸送淀粉能力的主要因素,風量小,輸送淀粉量少;風量大,輸送淀粉量多。由于影響離心風機全壓的因素(輸送距離、管道彎頭)變化不大、不多,所以,需要的離心風機全壓變化范圍也不大。
3.5 玉米淀粉氣力輸送技術和設備配置
⑴ 干燥后的玉米淀粉氣力輸送技術有三種,一是使用羅茨風機正壓吹送,二是使用離心風機負壓吸送,三是使用離心風機正壓吹送。注意,由于淀粉輸送風機使用的風是室內的空氣,沒有換熱,風溫不會變化,風量也不變化。
⑵ 使用羅茨風機正壓吹送、離心風機負壓吸送和正壓吹送三種技術配置的設備是不相同的。①使用羅茨風機正壓吹送:配置的設備有羅茨風機、厚壁玉米淀粉輸送風管(鑄實管)、脈沖除塵器、淀粉貯倉。②使用離心風機負壓吸送:配置的設備有薄壁玉米淀粉輸送風管、旋風卸料器、旋轉卸料閥、離心風機、淀粉貯倉。③使用離心風機正壓吹送:配置的設備有離心風機、薄壁玉米淀粉輸送風管、旋風卸料器、旋轉卸料閥、淀粉貯倉。在使用離心風機負壓吸送和正壓吹送兩個方法中,如果采用的旋風卸料器結構正確、性能高,則尾風不在需要安裝脈沖除塵器了。如果采用的旋風分離器結構和性能都不能保證尾氣不含有淀粉時,為了保證尾氣沒有淀粉飛揚,可以在旋風卸料器的后面連接安裝脈沖除塵器,用來回收尾氣中飛揚的淀粉。④很多生產線在玉米淀粉輸送風管尾部、淀粉貯料罐前安裝淀粉篩,用于對淀粉篩理,保證成品淀粉的細度和篩分除去大于100目的異物(特殊細度要求例外)。淀粉篩使用高方篩、園振篩、直線篩等篩分設備。
⑶ 氣力輸送系統設備和部件:有受料器、輸送管、卸料器、關氣器、旋風卸料器和風機等。①受料器:喉管、吸嘴、發送器等,作用是將物料送入輸送管,造成合適的料氣比,使物料被啟動、加速和輸送。②輸送管:是輸送物料的管道。壓(壓送)技術使用的輸送管比較細,使用標準厚壁管,彎管要使用加厚的厚壁管,半徑≥1.5m。負壓(吸送)技術使用的輸送管比較粗,是使用鋼板卷制的,彎頭是圓滑的。③卸料器:常用的分離器有容積式和旋風式兩種,作用是將物料與空氣分離,對物料進行分選和卸料。容積式卸料器是園柱體的罐,可以在其中增加一些阻料部件,旋風式卸料器即是旋風分離器。④關氣器(旋轉卸料閥):有翻板式和回轉式兩種,可作為喂料器,又可作為卸料器。關氣器作用是均勻供料或卸料,同時阻止空氣漏入。⑤旋風卸料器:氣力輸送系統的旋風卸料器是旋風分離器。⑥風機:氣體輸送機械具有可壓縮性和很小的密度(約為液體密度的1‰左右)。氣體密度很小,體積流量很大。氣體輸送管路中的流速要大,約為液體的15~24倍。氣體具有可壓縮性,在輸送機械內部氣體壓強發生變化的同時體積及溫度也將隨之變化,這些變化對氣體輸送機械的結構、形狀有很大的影響。氣體輸送機械根據產生的進、出口壓強差和壓強比(壓縮比)進行如下分類:離心風機出口壓強≤1.47×104Pa,壓縮比1~1.15。鼓風機出口壓強(1.47~29.4)×104Pa,壓縮比<4。壓縮機出口壓強≥2.94×104Pa,壓縮比>(4)真空泵用于減壓,出口壓力為1大氣壓,壓縮比由真空度決定。風機的作用是為系統提供動力。真空吸送系統常用高壓離心風機或水環真空泵,壓送系統則需用羅茨鼓風機或空壓機。
玉米淀粉氣力輸送系統設計計算
設某個玉米淀粉生產線的一條氣流干燥線淀粉產量(即輸送量)是16.67t/h,一天的淀粉產量(即輸送量)是400t,分別使用羅茨風機正壓吹送、離心風機負壓吸送和正壓吹送三種方法,計算輸送風管、引風機、旋風分離器等的參數。⑴ 羅茨風機正壓吹送是密相輸送,主要設計好輸送風量、固氣比、風壓、輸送管道直徑。輸送量為16.67t/h,風速為35m/s,物料密度為0.43%。
各計算如下:
① 風管截面積:F = Q/(3600υ) = 16.67/(3600×35) = 0.0001323m2。

③ 風量:Q1 = F1×L = F1×vt = πd²vt/4 = 3.14×0.198×0.198×35×3600/4 = 3878m³/h。
④ 經查羅茨風機樣本選用型號為SSR-250HB,Q = 67Nm3/min,P = 63.7KPa,電機功率110kW,轉速1500rpm。
⑵ 離心風機負壓吸送是稀相輸送,主要是設計好輸送風量、固氣比、風壓、輸送管道直徑、卸料旋風分離器。輸送量為16.67t/h,風速為35m/s,物料密度為0.1%。
① 風管截面積:F = Q/(3600υ) = 16.67/(3600×35) = 0.0001323m2。

③ 風量:Q1 = F1×L = F1×vt = πd²vt/4 = 3.14×0.411×0.411×35×3600/4 = 16708m³/h。
④ 查風機樣本選用風機型號為6-23-9C,風量為Q = 19350,全壓H = 6880Pa,電機功率90kW,轉速2250rpm。
⑤ 查閱資料顯示,旋風分離器單位時間通風量為8200~9100m³/m2•h,取旋風分離器單位時間通風量為8500m³/m2•h。
⑥ 則旋風分離器截面積為F2 = Q/8500 = 19350/8500 = 2.276m2。

⑶ 離心風機正壓吹送是稀相輸送,主要是設計好輸送風量、固氣比、風壓、輸送管道直徑、卸料旋風分離器。輸送量為16.67t/h,風速為35m/s,物料密度為0.1%。
計算與⑵離心風機負壓吸送相同。
玉米淀粉氣力輸送系統布置和安裝
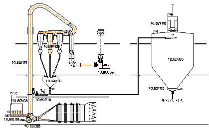
通常玉米淀粉氣流干燥的旋風分離器布置和安裝在三樓或四樓,玉米淀粉輸送風管就布置和安裝在玉米淀粉干燥的旋風分離器下面(在二樓或三樓)。⑴ 羅茨風機正壓吹送:羅茨風機可以布置和安裝在輸送風管頭附近或較遠一點的位置,受料的喉管安裝位置很主要,脈沖除塵器安裝在淀粉貯罐上面。
⑵ 離心風機負壓吸送:負壓吸送風機和旋風卸料器是布置和安裝在淀粉貯罐上方,輸送風管頭要安裝過濾網。
⑶ 離心風機正壓吹送:正壓吹送風機布置和安裝在輸送風管上,進口和出口都連接落料的輸送風管,輸送風管頭要安裝過濾網。
使用羅茨風機正壓吹送系統工藝技術圖見圖1,使用離心風機負壓吸送系統工藝技術圖見圖2,使用離心風機正壓吹送系統工藝技術圖見圖3。

圖1 使用羅茨風機正壓吹送系統工藝技術圖

圖2 使用離心風機負壓吸送系統工藝技術圖

圖3 使用離心風機正壓吹送系統工藝技術圖
上一篇:雞精氣力輸送與自動配料系統
下一篇:糖氣力輸送及自動配料系統
